Neben einer kompletten Sanierung der Gebäudehülle und
Haustechnik unter energetischen Gesichtspunkten stellte
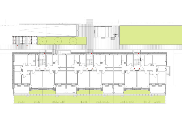
die Wohnumfeldgestaltung einen weiteren Handlungsschwerpunkt dar. Alle Erdgeschosswohungen bekamen einen direkten
Gartenzugang, die Balkone wurden vergrößert und die Eingangsbereiche mit Briefkästen, Nebengebäuden und Sitzbank neu gestaltet.
Mit Hilfe einer 40 m² großen Solaranlage und einer neuen
Brennwertheizung konnte der Energieverbrauch des hochgedämmten
Gebäudes auf den Neubaustandard der ENEV 2007 gebracht werden.